
Listed by Craig Labrecque - MFH Realty. 603-836-3722
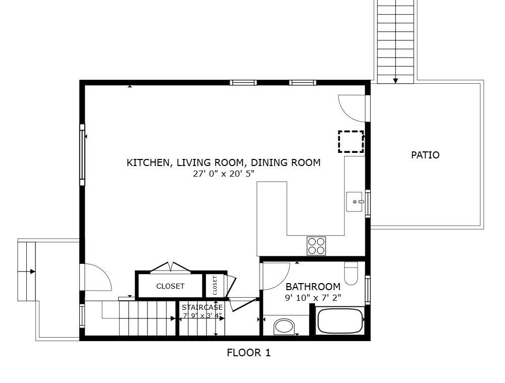
Welcome to the newly established Lord Edward Condominium Association and this spacious 3-bedroom, 2-bathroom townhome offering approximately ±1,425 square feet of comfortable living. This move-in ready home features bright kitchen with stainless steel appliances, freshly painted interiors with laminate flooring in the kitchen and living room. Upstairs you will find 3-carpeted bedrooms with ample closet space. Enjoy the convenience of a full basement for storage or future finishing, along with two dedicated parking spaces. The association spans ±7.87 common acres and includes a playground area for residents to enjoy. Located just minutes from the state capital of Concord and about ±20 minutes from the outlets in Tilton, this home also offers easy access to Route 93 and to the expanding Merchants Way shopping center, anchored by a popular grocery store, a liquor and wine outlet and other well know retailers and restaurants. A walk-in medical care facility in the shopping center adds even more convenience to the area. Open House: Saturday & Sunday, October 18-19, from 10:00AM to 12:00PM.
Copyright 2026 PrimeMLS, Inc. All rights reserved. This information is deemed reliable, but not guaranteed. The data relating to real estate displayed on this Site comes in part from the IDX Program of PrimeMLS. The information being provided is for consumers' personal, non-commercial use and may not be used for any purpose other than to identify prospective properties consumers may be interested in purchasing. This display of listings may or may not be the entire Compilation from the PrimeMLS database, and PrimeMLS does not guarantee the accuracy of such information. The listing broker’s offer of compensation is made only to other real estate licensees who are participant members of the PrimeMLS. Data last updated Wednesday, February 11th, 2026 11:12:41 PM.
Data services provided by IDX Broker
| Price: | $349,900 |
| Address: | 5A Red Oak Way 5A |
| City: | Boscawen |
| County: | NH-Merrimack |
| State: | New Hampshire |
| MLS: | 5063635 |
| Square Feet: | 1,425 |
| Bedrooms: | 3 |
| Bathrooms: | 2 |
