
103 Seaverns Bridge Road
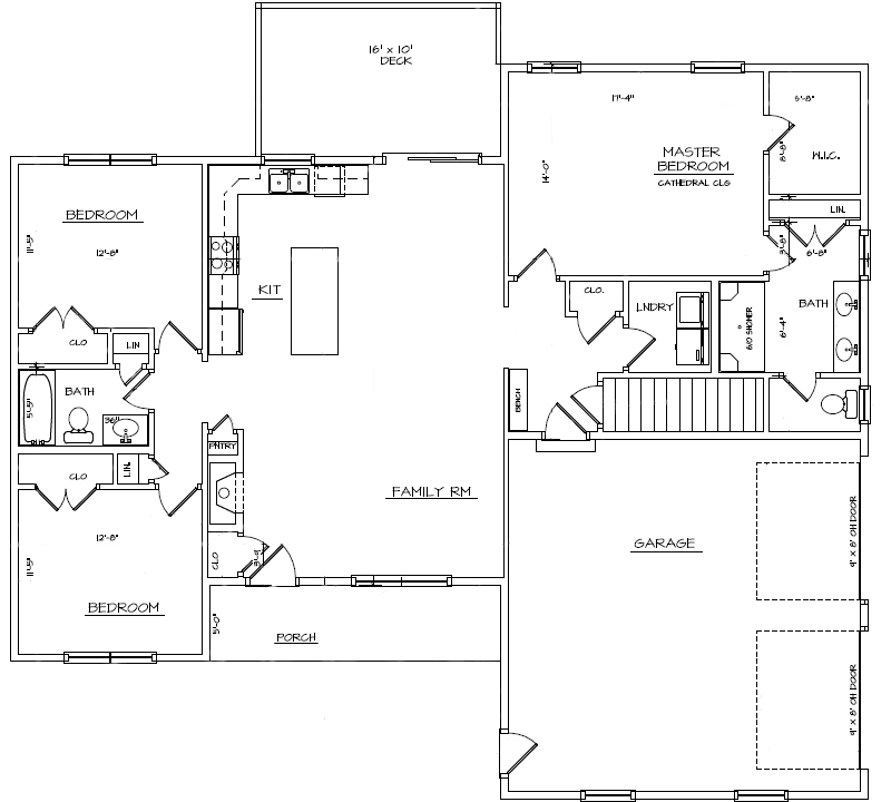
Under Construction: This 1,554 square-foot ranch style home, situated on a ±3.39 acre lot, offers three bedrooms, two bathrooms and a thoughtful layout designed for modern living. The primary suite features a walk-in closet and a private bathroom with stand up shower. The open floor plan seamlessly connects the kitchen, dining and living areas creating an ideal space for entertaining or relaxing. Planned finishes include solid-surface countertops, custom cabinetry and trim, hardwood, carpeting and tile flooring. An energy-efficient heating and cooling system with an on-demand water heater adds comfort. A first-floor laundry and spacious two-car garage add convenience and function, while the unfinished basement provides ample storage and room for future expansion. There is time for some selections, so don’t wait call today!
Number of Units: 1
Listed Price: $724,900
Square Footage: 1,554
Number of Buildings: 1
Contact Phone: 603-557-4641
